

            
            
            Appartement „Da Zillertaler“
Appartement „Die Geigerin“
            
            
            
            
              Appartement „Da Zillertaler“
NEU!! ,Duo“
NEU!! ,Maria Rast“
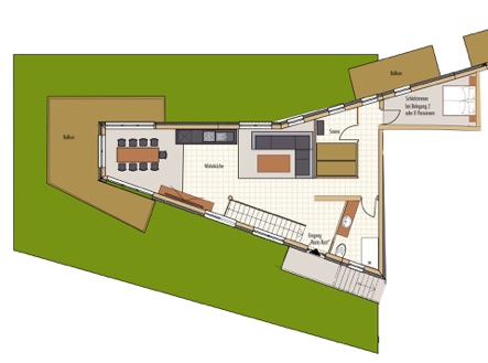
              -Obergeschoss 
-Tiroler Stil mit viel Holz
-Kachelofen
-offener Wohn- Essbereich
-großes Badezimmer
-Balkon mit Blick über Zell am Ziller
-Schlafzimmer mit Veranda und Blick zur Wallfahrtskirche Maria Rast 
Ausstattung
- großes Badezimmer mit Bergblick, Eckbadewanne und seperate Dusche, WC und Waschtisch
- 1 Schlafzimmer mit Veranda
-voll ausgestattete Küche mit Geschirrspüler
-Wohnbereich mit Flat-TV und großem Liegebereich
              
              
              
              Badezimmer mit Dusche, Eckbadewanne, WC
Schlafzimmer mit Zugang zur Veranda, eigenem Zugang zum Badezimmer und Blick zum Kaminfeuer
Wohnküche mit Kachelofen
              
              Küche und Wohnraum sind durch den Kachelofen und einen Raumteiler optisch getrennt
              Blick vom Balkon im Sommer
              
              
              
              
              Wohnküche bei Belegung 4 Pax
Ausblick Küche
Eigener Eingang
              Schlafzimmer
Fam. Christoph Hauser
Gerlosberg 58 
A-6280 Zell am Ziller
Tel. +43(0)664-3854660
unverbindliche Anfrage senden
              Appartement „Die Geigerin“
Badezimmer
              große Liegefläche im Wohnbereich